2 Bedroom Downstairs Apartment with heated plunge pool

Welcome to our Bay House 2-bedroom downstairs apartment located on the beach front of Geographe Bay.
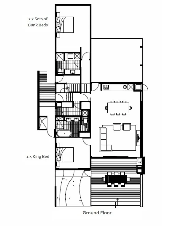
This luxurious accommodation features a master king suite with ensuite and an additional bunk room for six guests. The master suite boasts a king bed and a well-appointed ensuite bathroom, while the bunk room includes two sets of single bunk beds and two trundle beds, providing comfortable accommodation for up to eight guests.

The apartment also features two well-appointed bathrooms, a gourmet kitchen with microwave and coffee machine, open-plan living area with a TV, Foxtel, and stereo. The outdoor patio area with ocean glimpses, a lawned area, an outdoor setting, and a BBQ, providing the perfect setting for al fresco dining and relaxation. The private plunge pool is heated to 30 degrees, offering a luxurious way to cool off and unwind after a day at the beach or exploring the wine region.

Book your stay at The Aqua Resort, downstairs apartment and experience the ultimate beachside retreat. With its luxurious amenities, stunning location, and accommodation for up to eight guests, this apartment is the perfect choice for families or groups of friends
looking to escape and unwind in Busselton.

Bay House - 2 bedroom, downstairs apartment with plunge pool

Features:

2 Bedrooms:
Room 1 - 1 x king bed with ensuite
Room 2 - 2 x sets of single bunk beds + 2 trundle beds

2 well appointed bathrooms

Gourmet kitchen, microwave and coffee machine
Open plan spacious living area with TV, Foxtel, Stereo
Full reverse cycle air conditioning
Full laundry facilities

Deck area with ocean glimpses
Lawned area
Outdoor setting and BBQ

Private plunge pool, heated to 30 degrees

Accommodation for up to 8 people

Book Now

Bay House - 3 bedroom, downstairs apartment with plunge pool

The Floor Plan

Book Now